Мостов кран с двойна греда 30t
Товароподемност: 5-450t
Обхват: 10,5-31,5 м
Дежурство: A3-A6
Персонализирано обслужване
Описание
Представяне на мостовия кран с двойна греда
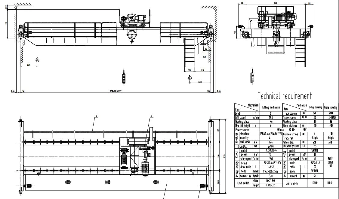
30-тонен мостов кран с двойна греда, вид тежкотоварен кран. 30-тонен мостов мостов кран с двойна греда ще бъде полезно оборудване за обработка на материали за вашите работилници, стоманодобивна фабрика, гараж, работни станции и складове и др.
Мостов кран с двойна греда 30t се състои от гредова рамка, устройство за движение на крана и количка с устройство за повдигане и преместване. Има Pave релсата за движение на количката на главния носач.
Характеристики на мостовия кран с двойна греда
Тежки режими и висока ефективност;
2. Подходящ за всяка среда (висока температура, взривоустойчив и др.);
3. Дълъг живот: 30-50 години;
4. Лесен за инсталиране и поддръжка;
5. Разумна структура и силна твърдост;
6. Скоростта може да бъде контрол на скоростта на честотен инвертор;
7. Методът на управление е управление в кабината или дистанционно управление;
8. В зависимост от повдигането на товара, кранът може да бъде оборудван с магнит за висяща греда или магнитен патронник или с грайфер или C кука;
9. Кранът е оборудван с всички движещи се крайни превключватели, ограничение на натоварване и други стандартни устройства за безопасност, за да се обещае безопасна работа на крана.
Двугредов мостов кран

Параметри на мостовия кран с двоен носач 30 тона
| Модел | QD |
| Товароносимост | 5-450t |
| Обхват | 10.5-31.5m |
| Височина на повдигане | 6-24m |
| Скорост на повдигане | 2,1-11,5 м/мин |
| Скорост на движение на количката | 27-40 м/мин |
| Скорост на движение на крана | 42-75 м/мин |
| Работно задължение | A3-A7 |
Основни части на мостовия кран с двойна греда

Свързан мостов кран
LH двугредов мостов кран сЕлектрически подемнициt
QD Двугредов мостов кран селектрическа лебедка
QE Двугредов мостов кран сдвойна повдигаща лебедка
QZ Двугредов мостов кран сГрабни
Мостов кран тип QC с електромагнит
мостов кран на водноелектрическата станция
Популярни тагове: 30t мостов мостов кран с двойна греда Китай, производители, доставчици, персонализирани, оферта, оферта, цена
Изпрати запитване
Може да харесаш също

















